
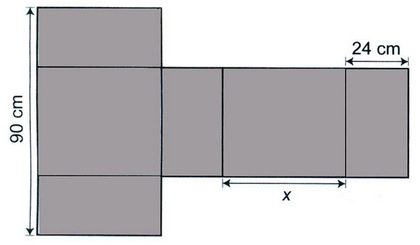
Conforme regulamento da Agência Nacional de Aviação Civil (Anac), o passageiro que embarcar em voo doméstico poderá transportar bagagem de mão, contudo a soma das dimensões da bagagem (altura + comprimento + largura) não pode ser superior a 115 cm. 
A figura mostra a planificação de uma caixa que tem a forma de um paralelepípedo retângulo. O maior valor possível para x, em centímetros, para que a caixa permaneça dentro dos padrões permitidos pela Anac
é
TEMPO NA QUESTÃO
00:00:00
Meu Desempenho
Matemática Geral
Total de Questões: ?
Respondidas: ? (0,00%)
Certas: ? (0,00%)
Erradas: ? (0,00%)
Somente usuários cadastrados!