
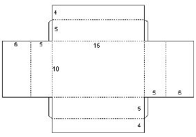
Um fabricante de brinquedos recebeu o projeto de uma caixa que deverá conter cinco pequenos sólidos, colocados na caixa por uma abertura em sua tampa. A figura representa a planificação da caixa, com as medidas dadas em centímetros.
Os sólidos são fabricados nas formas de
I. um cone reto de altura 1 cm e raio da base 1,5 cm.
II. um cubo de aresta 2 cm.
III. uma esfera de raio 1,5 cm.
IV. um paralelepípedo retangular reto, de dimensões 2 cm, 3 cm e 4 cm.
V. um cilindro reto de altura 3 cm e raio da base 1 cm.
O fabricante não aceitou o projeto, pois percebeu que, pela abertura dessa caixa, só poderia colocar os sólidos dos tipos
TEMPO NA QUESTÃO
00:00:00
Meu Desempenho
Matemática Geometria
Total de Questões: ?
Respondidas: ? (0,00%)
Certas: ? (0,00%)
Erradas: ? (0,00%)
Somente usuários cadastrados!